Arquitectura y Reformas Manuel

Infografía,
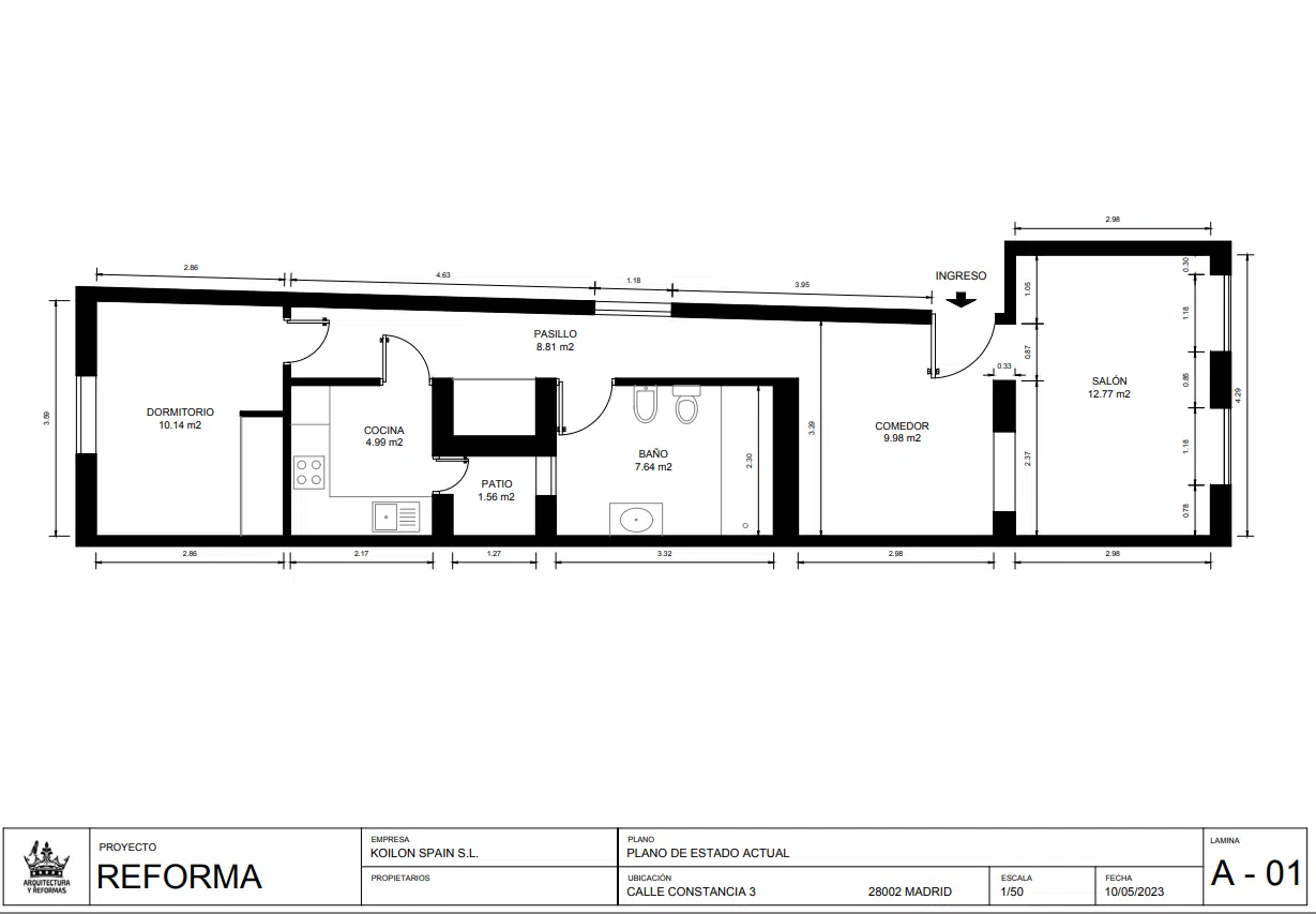
Calle de Constancia

Infografía,
Calle de Constancia

Ubicación

Calle Constancia, Madrid

Ubicación

Calle Constancia, Madrid

Ubicación

Calle Constancia, Madrid

Trabajo de diseño con planos e infografía 3D para visualizar la reforma antes de su ejecución. Una propuesta clara y detallada que facilita la planificación y la toma de decisiones

Trabajo de diseño con planos e infografía 3D para visualizar la reforma antes de su ejecución. Una propuesta clara y detallada que facilita la planificación y la toma de decisiones

Trabajo de diseño con planos e infografía 3D para visualizar la reforma antes de su ejecución. Una propuesta clara y detallada que facilita la planificación y la toma de decisiones

Cuéntanos tu idea

y te ayudamos a dar forma a tu proyecto

Cuéntanos tu idea

y te ayudamos a dar forma a tu proyecto

Cuéntanos tu idea

y te ayudamos a dar forma
a tu proyecto

También ejecutamos

Reformas
negocios

Espacios
de ocio

Vídeos
de reformas

Comunidades
de vecinos

También ejecutamos

Reformas
negocios

Espacios
de ocio

Vídeos
de reformas

Comunidades
de vecinos

También ejecutamos

Reformas negocios

Espacios de ocio

Vídeos de reformas

Comunidades de vecinos

Flag Counter
160 Visitas totales
109 Visitantes únicos